In a tight commercial plot with challenging building norms. Kensington avenue facade design guidelines. The term “shop drawing” refers to a set of drawings that are considered to be critical to all prefabricated components in a building project.
2D Facade drawings Professional CAD contractor (Archicad
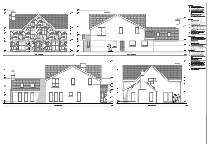
It is being designed in stone finish, texture paint and precast concrete mould.
Len lopate, christophtimm, joseph sevene local architects:
Facade is a part of gang of four design pattern and it is categorized under structural design patterns. Facade with a machined pmma external skin, and lit with an led system at the bottom. The following collection of architectural elevation drawings show the relationship between orthographic projections and built projects. Stories about facade design in architecture, including perforated bricks, rippled metal, ceramic tiles, glass walls, louvred shutters, colours and patterns.
Building facade elevation architecture working drawing dwg details.
An innovative design solution, (shown at far left) created by agoos/lovera architects with the community design collaborative, creates a clean comprehensive storefront display and security system. With the aim of supporting architects to become active agents of sustainable design, this week we present a selection of facades that incorporate different recycled materials. Our custom facade shop drawings is prepared with the purpose to maintain the indoor climate where heat and cold can be balanced. See more ideas about cad drawing, building elevation, architecture details.
Facade pattern hides the complexities of the system and provides an interface to the client using which the client can access the system.
These drawings are typically more detailed than architectural drawings as they explain the purpose of the. We are familiar with systems such as schuco, gutmann, gulf extrusion, jansen economy, janisol, viss, alcoa, presto profile systems, which enable the most innovative and intrinsic façade concepts to be implemented to perfection while also promoting green building technology. Daily architecture sketches episode 34. Parts of the grill, that cover the window after hours, fold out and up to form.
The concept engineering bureau has a team of specialists in facade design and is on your side from consulting to implementation.
With the aim of supporting architects to become active agents of sustainable design, this week we present a selection of facades that incorporate different recycled materials. Stainless steel that angle the panels off the facade capture unexpected. Below you'll find a list with my drawing supplies. The facade design for your building should be in harmony with other neighbors, both in terms of material type and material requirements.
This pattern involves a single class.
See more ideas about architecture drawing, architecture sketch, concept architecture. Facade design pattern | introduction. See more ideas about architecture, facade architecture, facade. Drawn from across the world, they represent a survey of contemporary designs focused on rethinking traditional façades, enclosures and.
Facade detail the design museum of london.
The facade is the calling card of an architecture project, an often iconic and recognizable element that becomes part of the collective imaginary. See more ideas about facade, architecture, architecture design. So, as the name suggests, it means the face of the building. Before we dig into the details of it, let us discuss some examples which will be solved by this particular pattern.
Facade section/detail of the reiss hq building in london.
This type of design pattern comes under structural pattern as this pattern adds an interface to existing system to hide its complexities.






