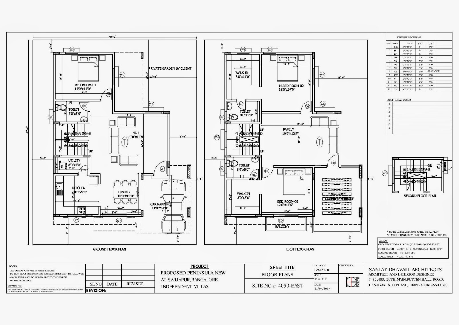
In this 40*50 house plan, exterior walls are 9 inch and interior walls are 4 inches. When you start from the main gate, on the left side there is a 12’x8’1” feet small garden and on the right side, there is a car parking area. Modify plan get working drawings.
Moving left from porch, we enter into our drawing room, which has a toilet as well.
One of the bedrooms is on the ground floor.
Double floor size:40 feet by 50 type:vastu plan how to design east facing home. The ground floor has a parking space of 106 sqft to accomodate your small car. Floor plan for 40 x 50 feet plot 4 bhk 2000 square 222 sq yards ghar. Ready made complete architectural drawings, construction drawings and 3d views
This floor plan is an ideal plan if you have a west facing property.
40x50 house plan plans 3d east facing. Bunches of outside living space, an open kitchen perfect for flapjack breakfasts, and enough space for visitors. Plot size 40×50, east facing vastu plan, 2 bhk house with attached bath room & a common bath room. 3bhk house plan is one of the best indian house building plans that are based on the architectural drawings and blueprints that are prepared by myhousemap.in.
We have helped over 114,000 customers find their dream home.
2000 square feet (185 square meter) total bedrooms : Respected sir, the way of delivering wisdom here is most appreciated. The total covered area is 1746 sq ft. General details total area :
The floor plan is for a compact 1 bhk house in a plot of 20 feet x 30 feet.
40x50 house plan east facing , source : Entering from main gate, first we encounter with huge open lawn area, which is located next to spacious porch, where couple of sedans and two to three bikes can be parked. #40x50houseplan #3bhkeastfacehouseplan #modernhouseplan #indianhouseplancontact no. Indian style 40x50 house plans with 3d exterior elevation designs | 2 floor, 4 total bedroom, 4 total bathroom, and ground floor area is 815 sq ft, first floors area is 570 sq ft, total area is 1535 sq ft, veedu plans kerala style with narrow lot 40x50 open floor plans of city style / urban style home plans
1st floor & upper floor can be constructed similarly to the ground floor.
40x50 barndominium floor plans 8 inspiring clic and unique designs. Ad search by architectural style, square footage, home features & countless other criteria! This lovely escape bungalow has everything a summer home needs: 40x50 east facing home in chennarayapatna | athimiya residence by design studio architectproject fact file:name:
Www.designmyghar.com 40x50 house plans with 3d front elevation floor plan for 40 x 50 plot 3 bhk 2000 square feet 222 sq yards ghar 054 the floor plan is for a compact 1 bhk house in a plot of 20 feet x 30 feet the ground floor has a parking space of 106 sqft to accomodate your small car this floor plan is an ideal.
40×50 house plans,37 by 31 home plans for your dream house. On the principle floor, the kitchen's island offers bar seating for easygoing dinners. Comfort, elegance, space, easy maintenance and affordability, get your 2 bhk house floor plans online at house designs india. It has three floors 100 sq yards house plan.
Buy now more packages customize this.
40×50 house plan east facing 4bhk with garden and car parking. Please remind the thing and select your favourite house plan. There are 6 bedrooms and 2 attached bathrooms. Now, come to the plan it has two toilets, one living room, dining area etc.
See more ideas about duplex house plans, model house plan, indian house plans.
Ad one stop solution for all your architectural, engineering and construction needs. Plan is narrow from the front as the front is 60 ft and the depth is 60 ft. 40x50 barndominium floor plans 8 house with 3d front two units village plan 50 x 40 for feet plot your dream 2250 sq ft duplex 2 bhk 3. We can help you with everything from design & engineering to general contractor selection
40x50 house plan, east facing.
All our floor plans are vaastu compliant thus giving you all positivity for you and your family. House plans for 40 x 50 feet plot decorchamp. 08440924542hello friends i try my best to build this map for you i hope i.
 
            
 
            
 
            
 
            
 
            
 
            
 
            
